Sendling - Einzigartige Rarität mit gemütlicher Galerie und Dachbalkon beim Neuhofener Berg

Beschreibung
Eine seltene Münchner Rarität in begehrter und zentrumsnaher Wohnlage.
Repräsentativer und gepflegter Altbau aus dem Jahre 1915. Das eindrucksvolle Erscheinungsbild des Gebäudes wird durch zahlreiche Rundbogenfenster, einen imposanten Erker und durch die feinen Detailarbeiten an der Fassade unterstrichen. Das Entree und das nostalgische Treppenhaus mit Holzstufen, Holzgeländer und Kassettentüren zeugen von der Eleganz der vergangenen Epoche.
Ausstattung
Sehr helles Dachgeschossflair mit ca. 150 m² Wohnfläche und großzügiger 4-Zimmer Aufteilung auf zwei Ebenen. Die Besonderheit der weitläufigen Maisonette wird durch nostalgische Elemente wie einer großen Flügeltüre, den Fenstern mit dekorativer Glasmalerei und den imposanten Holzbalken deutlich. Der gemütliche Kamin und ein sonniger Westbalkon in ruhiger Innenhofausrichtung vervollständigen das Angebot in bester Weise.
Die Wohnung ließe sich dank der außergewöhnlichen Aufteilung ideal nach eigenen Ideen umgestalten und in ein individuelles Wohlfühldomizil verwandeln.
Wohnkonzept:
Dachgeschoss:
• Offener Wohn-Essbereich mit hohen Decken, Holz-Dachbalken und Zugang zum Balkon sowie zum Galeriebereich
• Angrenzende Küche mit Einbauten und Elektrogeräten
• Zwei ruhige Schlafzimmer
• Großes Badezimmer mit Eckwanne, Dusche, Waschmaschinenanschluss und Fenster
• Gäste-WC mit Fenster
• Geräumige Diele mit Platz für eine Garderobe
Spitzboden:
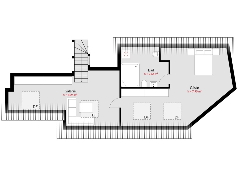
• Galeriebereich mit vielseitiger Nutzungsmöglichkeit
• Gemütliches Gästezimmer
• Badezimmer mit Dusche, Bidet und Trockneranschluss
Um die Privatsphäre des derzeitigen Eigentümers zu wahren, werden an dieser Stelle nur ausgewählte Innenbilder der Wohnung dargestellt, wir danken für Ihr Verständnis.
Grundriss
Grundriss I Dachgeschoss
Grundriss I SpitzbodenLage
Sehr beliebte und lebendige Sendlinger Wohnlage, in direkter Nähe der Freizeitanlagen Neuhofener Berg und Gierlinger Park. Die unmittelbare Umgebung besticht durch die ideale Infrastruktur und beste öffentliche Verkehrsanbindung. Alle Geschäfte des täglichen Bedarfs, diverse Restaurants, bekannte Biergärten und kleine Cafés sowie Kitas, Kindergärten und Schulen sind nur wenige Minuten entfernt. Weitläufige Parkanlagen und die nahen Isarauen laden zu vielfältiger Freizeitgestaltung ein.
• Ca. 2 Gehminuten bis zur nächsten Bushaltestelle
• Ca. 4 Gehminuten bis zu den Parkanlagen des Neuhofener Bergs
• Ca. 5 Gehminuten bis zum nächsten Supermarkt
• Ca. 5 Gehminuten bis zur nächsten U-Bahn-Haltestelle
• Ca. 6 Gehminuten bis zur nächsten S-Bahn-Station
• Ca. 7 Fahrminuten (Fahrrad) bis zur Isar mit den Flaucheranlagen
Eckdaten
Energieeffizienz
Ansprechpartner
Finden Sie Ihre Wunsch-Immobilie
Wir sind Ihr geprüfter und ausgezeichneter Immobilienmakler in München und Umgebung. Bei uns erwartet Sie ein umfangreiches Angebot an exklusiven Immobilien sowie ein Rundum-sorglos-Service. Angefangen bei der ersten Anfrage zur Immobilie über die Besichtigung bis hin zur Schlüsselübergabe begleiten wir Sie auf dem Weg zu Ihrem neuen Zuhause.
Ihre persönliche Betreuung liegt uns sehr am Herzen. Zögern Sie deshalb nicht, uns jederzeit bei Fragen zu Ihrer Immobilie zu kontaktieren. Auch bei dem Thema stehen wir Ihnen unterstützend zur Seite und vermitteln Ihnen die richtigen Ansprechpartner.
Seit 1984 sind wir als Immobilienmakler in München unterwegs. Vertrauen Sie auf unsere Erfahrung und unsere Kompetenz – bei uns sind Sie in guten Händen.
- Seiten:
- 1