Altenerding - Familienfreundliche Doppelhaushälfte mit Sonnenterrasse und ruhigem Garten








Beschreibung
Die gepflegte Doppelhaushälfte wurde im Jahr 1998 auf einem ca. 315 m² großen Grundstück errichtet und von den derzeitigen Eigentümern mit viel Sorgfalt instand gehalten, das Haus ist daher in einem guten und zeitgemäßen Gesamtzustand. Die neuen Bewohner können sich über eine effiziente Heizungsanlage mit Nah-/Fernwärmespeisung und eine moderne Photovoltaikanlage freuen, die zum Nachhaltigkeitsaspekt beiträgt. Neben der Garage und einem Außenstellplatz mit bequemen Parkmöglichkeiten kann das geflieste und abschließbare Gartenhaus (inkl. Licht- und Stromanschluss, 2 Steckdosen) für die Ablage von weiteren Utensilien und zur Überwinterung von Pflanzen genutzt werden.
Detailangaben zur installierten Photovoltaikanlage:
Die PV-Anlage hat eine Modulleistung von 6,00 kW/p auf dem Dach und einen Speicher (laut vorliegender Rechnung) von 9 kWh, da zusätzlich ein weiteres Modul erworben wurde, liegt die Speicherkapazität nun bei 12 kWh. Die Einspeisevergütung beträgt 8 ct (abhängig von der Inbetriebnahme).
Ausstattung
Sehr helles, gemütliches Ambiente mit ca. 169,93 m² Wohnfläche und familienfreundlicher 5-Zimmer Aufteilung auf vier Ebenen zzgl. eines großen Hobbyraums. Das Haus strahlt eine angenehme Wohlfühlatmosphäre aus und eignet sich perfekt dazu, eigene Einrichtungsideen umzusetzen. Der sonnige Außenbereich verfügt über eine Terrasse in begehrter Südausrichtung und einen gepflegten Garten mit sattem Rasen, immergrünen Pflanzen und Hochbeeten – hier lässt es sich wunderbar gärtnern und vom Alltagsstress erholen.
Wohnkonzept:
Erdgeschoss:
• Geräumiger Wohn-/Essbereich mit Zugang zum Außenbereich
• Angrenzende Küche mit Einbauten und Elektrogeräten
• Praktische Speise-/Abstellkammer
• Gäste-WC mit Fenster
• Diele mit Platz für eine Garderobe
Obergeschoss:
• Geräumiges Schlafzimmer mit Zugang zum sonnigen Südbalkon
• Weiteres Zimmer, bestens als Kinderzimmer nutzbar
• Badezimmer mit Badewanne, Dusche und Fenster
• Abstell-/Hauswirtschaftsraum
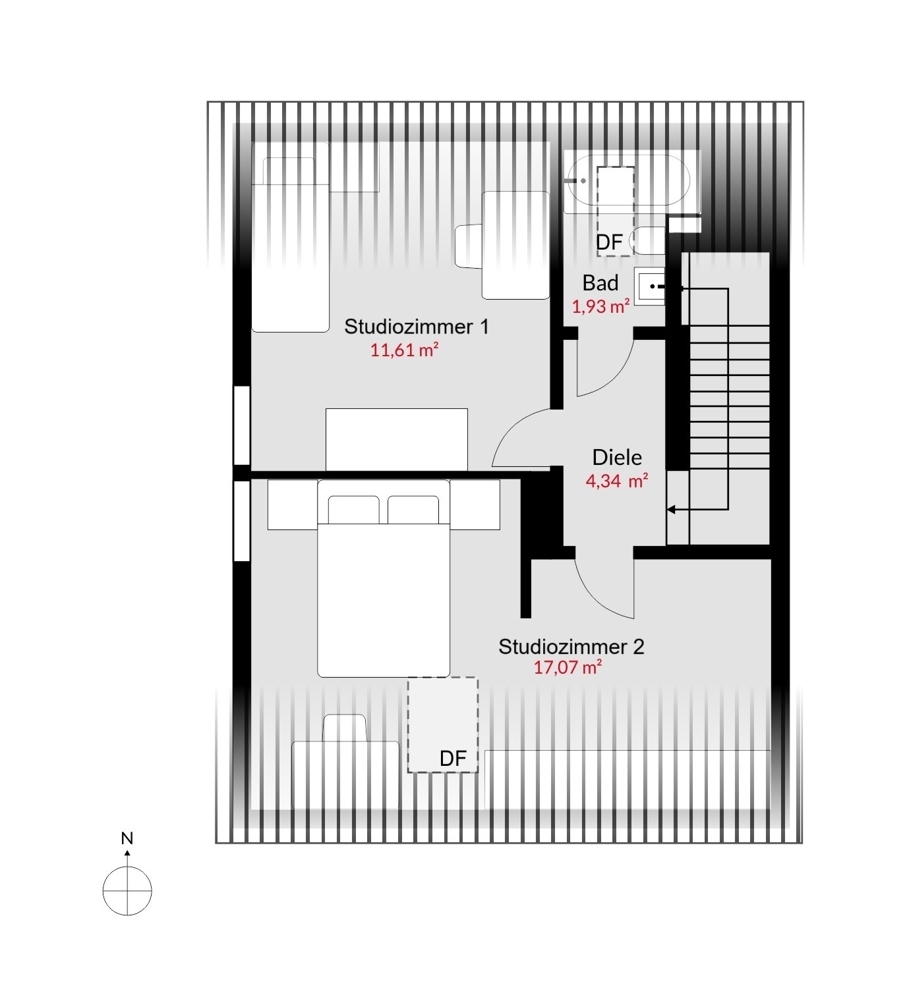
Dachgeschoss:
• Zwei Studiozimmer mit gemütlichen Dachschrägen und vielseitigen Nutzungsmöglichkeiten, z.B. als Kinder-/Gästezimmer, TV-Lounge, Büro oder Ankleide geeignet
• Badezimmer mit Badewanne und Dachflächenfenster
Untergeschoss:
• Großer Hobbyraum mit vielseitiger Nutzungsmöglichkeit
• Praktischer Hauswirtschaftsraum mit Waschmaschinen- und Trockneranschluss
• Funktionaler Kellerraum
• Heizungsraum inkl. Anschlüsse für die Photovoltaikanlage
• Diele mit viel Stauraum
Grundriss




Lage
Gewachsene und beliebte Wohnlage von Altenerding, einem familienfreundlichen Ortsteil der Kreisstadt Erding. Die unmittelbare Umgebung zeichnet sich durch die hervorragende Infrastruktur und die sehr gute öffentliche Verkehrsanbindung aus. Die Buslinien 455, 522 und 525 sowie die S-Bahn mit der Linie S2 garantieren die schnelle Erreichbarkeit aller umliegenden Ortschaften und Gemeinden. Zahlreiche Geschäfte des täglichen Bedarfs, Kitas, Kindergärten und Schulen befinden sich direkt in Erding, zusätzlich unterstreichen diverse Sport- und Freizeiteinrichtungen sowie der Erdinger Stadtpark die hohe Lebensqualität.
• Ca. 1 Gehminute bis zur nächsten Bushaltestelle
• Ca. 3 Gehminuten bis zur Realschule von Altenerding
• Ca. 4 Gehminuten bis zum Beginn des örtlichen Stadtparks
• Ca. 5 Gehminuten bis zur S-Bahn-Station Altenerding
• Ca. 6 Gehminuten bis zum nächsten Gymnasium
• Ca. 2 Fahrminuten (Fahrrad) bis zur nächsten Kindertagesstätte
• Ca. 3 Fahrminuten (Fahrrad) bis zum nächsten Supermarkt
Eckdaten
Energieeffizienz
Ansprechpartner
Finden Sie Ihre Wunsch-Immobilie
Wir sind Ihr geprüfter und ausgezeichneter Immobilienmakler in München und Umgebung. Bei uns erwartet Sie ein umfangreiches Angebot an exklusiven Immobilien sowie ein Rundum-sorglos-Service. Angefangen bei der ersten Anfrage zur Immobilie über die Besichtigung bis hin zur Schlüsselübergabe begleiten wir Sie auf dem Weg zu Ihrem neuen Zuhause.
Ihre persönliche Betreuung liegt uns sehr am Herzen. Zögern Sie deshalb nicht, uns jederzeit bei Fragen zu Ihrer Immobilie zu kontaktieren. Auch bei dem Thema stehen wir Ihnen unterstützend zur Seite und vermitteln Ihnen die richtigen Ansprechpartner.
Seit 1984 sind wir als Immobilienmakler in München unterwegs. Vertrauen Sie auf unsere Erfahrung und unsere Kompetenz – bei uns sind Sie in guten Händen.
- Seiten:
- 1