Au/Begehrte Ausnahmelage - Individuelles Stadthausflair mit Sonnenterrasse & traumhaftem Dachgarten

Beschreibung
Willkommen in Ihrem neuen Zuhause – Einzigartige Neubau-Wohnung inmitten der Stadt!
Außergewöhnliches Stadthaus mit moderner Architektur und minimalistischer Formsprache. Das Gebäude befindet sich im ruhigen Innenhof eines historischen Altbauensembles und wurde vor kurzer Zeit fertiggestellt. Das exklusive Stadthaus verfügt über drei Einheiten und wurde in energieeffizienter Holzständerbauweise erbaut. Die besondere Bauweise sorgt nicht nur für eine ansprechende Optik, sondern bringt auch hervorragende energetische Eigenschaften mit sich. Dank der Verwendung von natürlichen Materialien, ist ein gesundes und angenehmes Raumklima garantiert. Das Gebäude wird mit einer Hybridheizung betrieben, die eingebaute Luft-Wärme-Pumpe wird zu Abrechnungsspitzen von einer Gaszentralheizung unterstützt, dadurch wird ein geringer Energieverbrauch sichergestellt. Komplettiert wird der Neubau durch die ruhigen Freiflächen im Innenhof, die neu angelegt und ansprechend gestaltet wurden.
Das Stadthaus befindet sich in begehrter Raritätenlage und ist nur wenige Schritte von der Isar entfernt. Hier lassen sich die Vorzüge des urbanen Citylebens voll auskosten!
Lassen Sie sich von dem besonderen Flair dieses Neubau-Stadthauses begeistern und erleben Sie, wie Tradition und Moderne eine außergewöhnliche Symbiose eingehen.
Bei Fragen zu diesem Objekt können Sie sich gerne jederzeit an den zuständigen Betreuer Herrn Dominik Müller wenden.
Ausstattung
Repräsentatives, sehr helles Neubauflair mit ca. 146,97 m² Wohnfläche und großzügiger 5-Zimmer Aufteilung auf zwei Ebenen. Die Wohnung überzeugt durch den individuellen Charakter und diverse moderne Stilelemente. Große, bodentiefe Fenster sorgen für viel Tageslicht und verbinden die Innenräume harmonisch mit den erholsamen Außenbereichen. Besondere Highlights der Wohnung sind zum einen die sonnige Terrasse auf der zweiten Etage und zum anderen der ca. 34 m² große Privatgarten auf dem Dach des Stadthauses. Dieser traumhafte Bereich fungiert als erholsame Outdoor-Oase und rundet das hochkarätige Refugium in bester Weise ab.
Die Wohnung eignet sich ideal für City-Enthusiasten, die Wert auf komfortables, zeitgemäßes Wohnen inmitten der Münchener Innenstadt legen!
Wohnkonzept:
Der Eingang zur Wohnung erfolgt über die Ebene 2 im Dachgeschoss. Die Ebene 1 ist als Zwischengeschoss konzipiert und kann über den Hausflur derzeit nicht betreten werden.
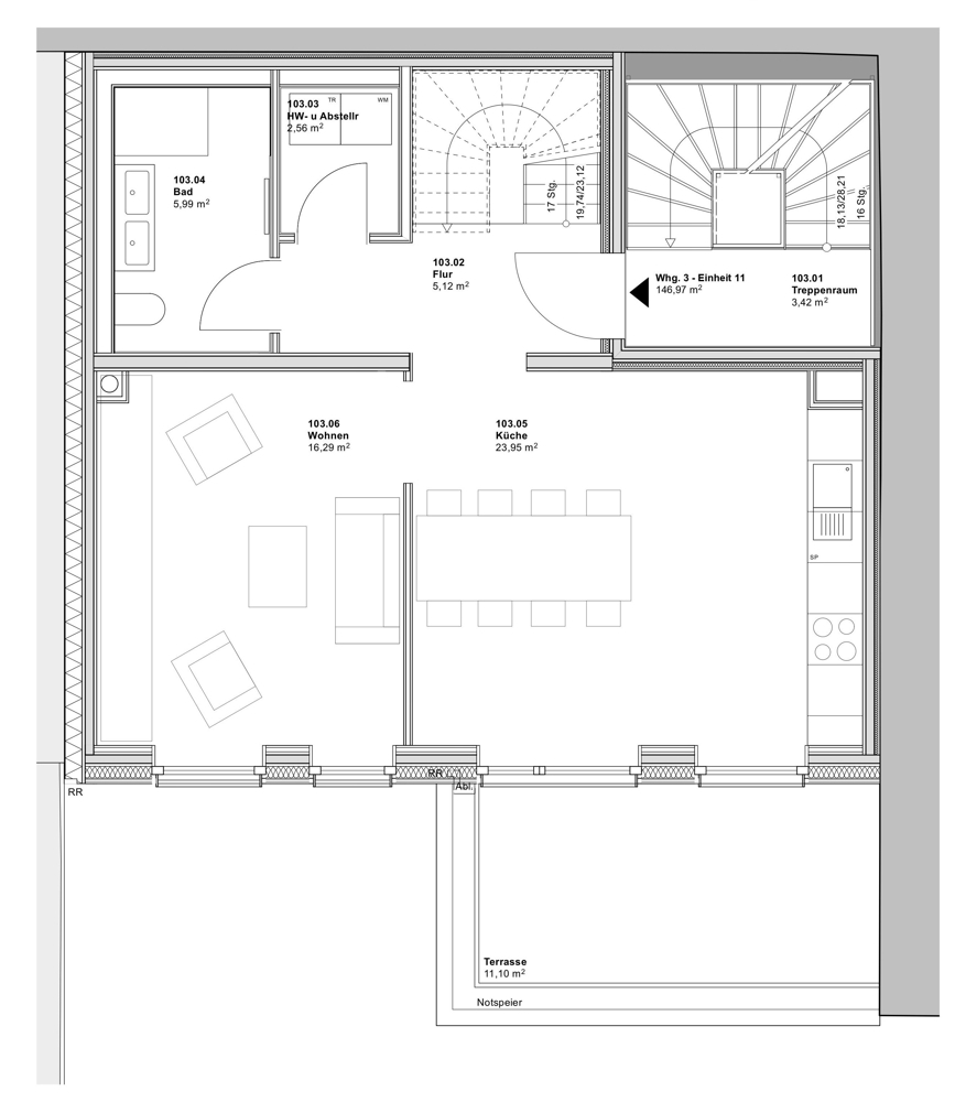
Ebene 2 l DG:
• Geräumiges Wohnzimmer mit großer Fensterfront
• Offene Küche mit Platz für Maßeinbauten, großem Essbereich und Zugang zur Terrasse
• Masterbad mit stylischen Fliesen, ebenerdiger Walk-In-Glasdusche und Doppelwaschtisch
• Zugang zum privaten Dachgarten
• Entree mit Platz für eine Garderobe
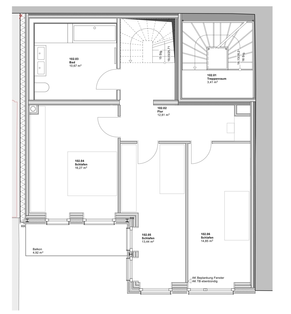
Ebene 1 l OG:
• Drei große Schlafzimmer, zwei davon mit Balkonzugang
• Geräumiges Masterbad mit stylischer Ausstattung, Badewanne, ebenerdiger Walk-In-Dusche und Doppelwaschtisch
• Praktische Abstellkammer mit Waschmaschinen- und Trockneranschluss
• Großzügiger Flur mit Platz für praktische Einbauten
• Zugang zu Ebene 2
Grundriss
OG l Ebene 1
DG l Ebene 2
DachgartenLage
Absolut beliebte und trendige Wohnlage der Au in unmittelbarer Isarnähe. Die begehrte Umgebung zeichnet sich durch die allerbeste Infrastruktur und die ideale öffentliche Verkehrsanbindung aus. Nur wenige Gehminuten zu allen Geschäften des täglichen Bedarfs, zu gehobenen Restaurants, zu bekannten Szene-Bars und kleinen Cafés. Der Mariahilfplatz mit dem bekannten Wochenmarkt, das Müllersche Volksbad, das Deutsche Museum und die weitläufigen Frühlingsanlagen entlang der Isar sind ebenfalls in wenigen Gehminuten zu erreichen.
• Ca. 1 Gehminute bis zur nächsten Straßenbahnhaltestelle
• Ca. 4 Gehminuten bis zur nächsten Bushaltestelle
• Ca. 4 Gehminuten bis zum Mariahilfplatz
• Ca. 4 Gehminuten bis zum beliebten Kulturstrand
• Ca. 6 Gehminuten bis zum nächsten Supermarkt
Eckdaten
Energieeffizienz
Ansprechpartner
Finden Sie Ihre Wunsch-Immobilie
Wir sind Ihr geprüfter und ausgezeichneter Immobilienmakler in München und Umgebung. Bei uns erwartet Sie ein umfangreiches Angebot an exklusiven Immobilien sowie ein Rundum-sorglos-Service. Angefangen bei der ersten Anfrage zur Immobilie über die Besichtigung bis hin zur Schlüsselübergabe begleiten wir Sie auf dem Weg zu Ihrem neuen Zuhause.
Ihre persönliche Betreuung liegt uns sehr am Herzen. Zögern Sie deshalb nicht, uns jederzeit bei Fragen zu Ihrer Immobilie zu kontaktieren. Auch bei dem Thema stehen wir Ihnen unterstützend zur Seite und vermitteln Ihnen die richtigen Ansprechpartner.
Seit 1984 sind wir als Immobilienmakler in München unterwegs. Vertrauen Sie auf unsere Erfahrung und unsere Kompetenz – bei uns sind Sie in guten Händen.
- Seiten:
- 1