Sendling - Gepflegtes Mehrfamilienhaus mit vier möblierten Wohneinheiten und Garten - Investment

Beschreibung
Gepflegtes und gut verwaltetes Mehrfamilienhaus mit zeitlosem Erscheinungsbild. Das 1966 errichtete Gebäude wurde kontinuierlich gepflegt und instand gehalten. Es verfügt über vier getrennte Wohneinheiten, praktische Kellerräume, einen begrünten Garten mit ruhiger Terrasse zum Innenhof sowie einen Einzelgaragenstellplatz mit kleiner Einfahrt, diese bietet zusätzlich Platz für einen weiteren Stellplatz.
Im Jahr 2011 wurden die Fenster und Rollläden erneuert, gefolgt von einer umfassenden Neugestaltung des Daches im Jahr 2013, die neue Dachgauben und eine verbesserte Isolierung beinhaltete. 2015 erhielten alle Wohneinheiten eine umfassende Neugestaltung. Im Erdgeschoss wurde ein neues Badezimmer eingebaut, während das Dachgeschoss durch den Einbau eines Velux Cabrio Balkons zusätzlich aufgewertet wurde. In verschiedenen Bereichen wurden ebenfalls die Sanitäreinrichtungen und Bodenbeläge erneuert. Ein modernes WLAN-System mit separatem Router für jede Wohneinheit sorgt für zusätzlichen Komfort. Zudem wurden drei neue Einbauküchen installiert, und die Fronten einer weiteren Küche erhielten ein zeitgemäßes Design.
Derzeit sind alle Wohnungen mit befristeten Mietverträgen ausgestattet, die maximale Vertragslaufzeit ist auf ein Jahr begrenzt. Dank der über viele Jahre stabilen Mieteinnahmen bietet sich für Investoren eine verlässliche und solide Ertragsbasis. Aktuell belaufen sich die jährlichen Einnahmen der Nettokaltmiete auf € 64.100,00.
Bei Fragen zu diesem Objekt können Sie sich gerne jederzeit an die zuständige Betreuerin Frau Sara Harms wenden.
Ausstattung
Alle Wohneinheiten sind vollständig möbliert und hochwertig ausgestattet, was die Möglichkeit eröffnet, durch kurzzeitige Vermietungen das Ertragspotential zu erhöhen.
AKTUELLES WOHNKONZEPT:
WHG 1 I Erdgeschoss mit ca. 54,71 m² Wohn-/Nutzfläche:
• Helles Wohnzimmer mit Zugang zum Schlafzimmer und zur Gartenterrasse
• Kompakter Flur mit Küchenmodul
• Ruhiges Schlafzimmer mit Blick in den Garten
• Badezimmer mit Badewanne, Waschmaschinenanschluss und Fenster
WHG 2 I 1. Obergeschoss mit ca. 72,14 m² Wohn-/Nutzfläche:
• Wohnzimmer mit Zugang zum Balkon
• Wohnküche mit Speisekammer
• Schlafzimmer mit Blick in den Innenhof
• Badezimmer mit Badewanne, Waschmaschinenanschluss und Fenster
WHG 3 I 2. Obergeschoss mit ca. 72,14 m² Wohn-/Nutzfläche:
• Wohnzimmer mit Zugang zum Balkon
• Wohnküche mit Speisekammer
• Schlafzimmer mit Blick in den Garten
• Badezimmer mit Badewanne, Waschmaschinenanschluss und Fenster
WHG 4 I Dachgeschoss mit ca. 52,72 m² Wohn-/Nutzfläche:
• Wohnküche mit einem Velux Cabrio Balkon
• Gemütliches Schlafzimmer
• Badezimmer mit Badewanne, Waschmaschinenanschluss und Fenster
• Flur mit Platz für eine Garderobe
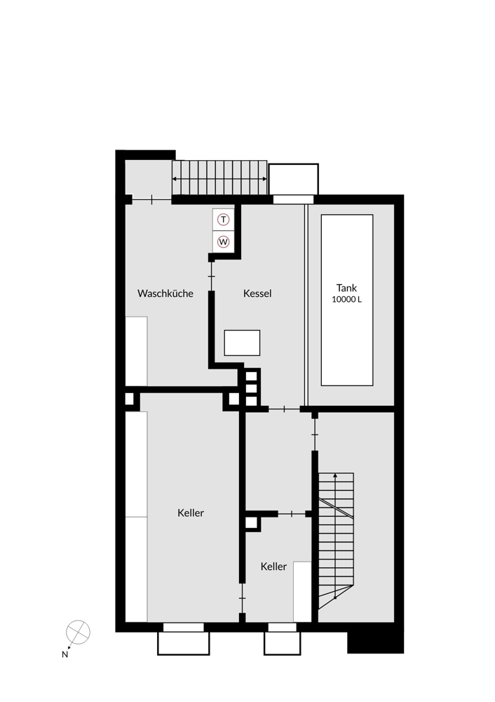
Kellergeschoss mit ca. 46,53 m² Nutzfläche:
• Kellerraum zur individuellen Nutzung
• Waschküche
• Heizöltankraum
Alle Daten zur Wohn- und Nutzfläche basieren auf Angaben des Eigentümers.
Grundriss
Grundriss WHG 1 I EG
Grundriss WHG 2 I OG 1
Grundriss WHG 3 I OG 2
Grundriss WHG 4 I DG
Grundriss I KellerLage
Gewachsene Wohnlage von Sendling-Südpark in einer ruhigen und wenig befahrenen Seitenstraße. Kitas, Kindergärten und Schulen sowie zahlreiche Geschäfte des täglichen Bedarfs, vielseitige Restaurants, urige Biergärten und kleine Cafés sind nur wenige Minuten entfernt. Die Buslinien 51 und 151 bieten Anbindung an die nächstgelegenen U-Bahn-Stationen und durch den Autobahnanschluss A95, der circa einen Kilometer entfernt ist, sind auch weiter entfernte Ziele schnell zu erreichen. Umliegende Sportstätten und der nahe Südpark bieten einen hohen Freizeit- und Erholungswert.
• Unmittelbare Nähe zum Sportpark des MTV München mit Fußball- und Tennisplätzen sowie einer Leichtathletikanlage
• Wenige Gehminuten bis zu den nächstgelegenen Kitas, Kindergärten und Schulen
• Ca. 2 Fahrminuten (Fahrrad) bis zur nächsten Bushaltestelle
• Ca. 3 Fahrminuten (Fahrrad) bis zum nächsten Supermarkt
• Ca. 3 Fahrminuten (Fahrrad) bis zu den Anfängen des Südparks
• Ca. 6 Fahrminuten (Fahrrad) bis zur nächsten U-Bahn-Station
• Ca. 7 Fahrminuten (Fahrrad) bis zum weitläufigen Westpark
Eckdaten
Energieeffizienz
Ansprechpartner
Finden Sie Ihre Wunsch-Immobilie
Wir sind Ihr geprüfter und ausgezeichneter Immobilienmakler in München und Umgebung. Bei uns erwartet Sie ein umfangreiches Angebot an exklusiven Immobilien sowie ein Rundum-sorglos-Service. Angefangen bei der ersten Anfrage zur Immobilie über die Besichtigung bis hin zur Schlüsselübergabe begleiten wir Sie auf dem Weg zu Ihrem neuen Zuhause.
Ihre persönliche Betreuung liegt uns sehr am Herzen. Zögern Sie deshalb nicht, uns jederzeit bei Fragen zu Ihrer Immobilie zu kontaktieren. Auch bei dem Thema stehen wir Ihnen unterstützend zur Seite und vermitteln Ihnen die richtigen Ansprechpartner.
Seit 1984 sind wir als Immobilienmakler in München unterwegs. Vertrauen Sie auf unsere Erfahrung und unsere Kompetenz – bei uns sind Sie in guten Händen.
- Seiten:
- 1